We contribute to the development of gas industry for creating a more convenient and better life for the human beings. Let the invisible air turn into visible brilliance.
WE CAN HELP YOU
As China Gas Equipment Manufacturer, Chuankong General Equipment specializes in Air separation plant, Cryogenic Storage Tank, Mobile Tank, Pump, Vaporizer, Cylinder, Dewars and etc.
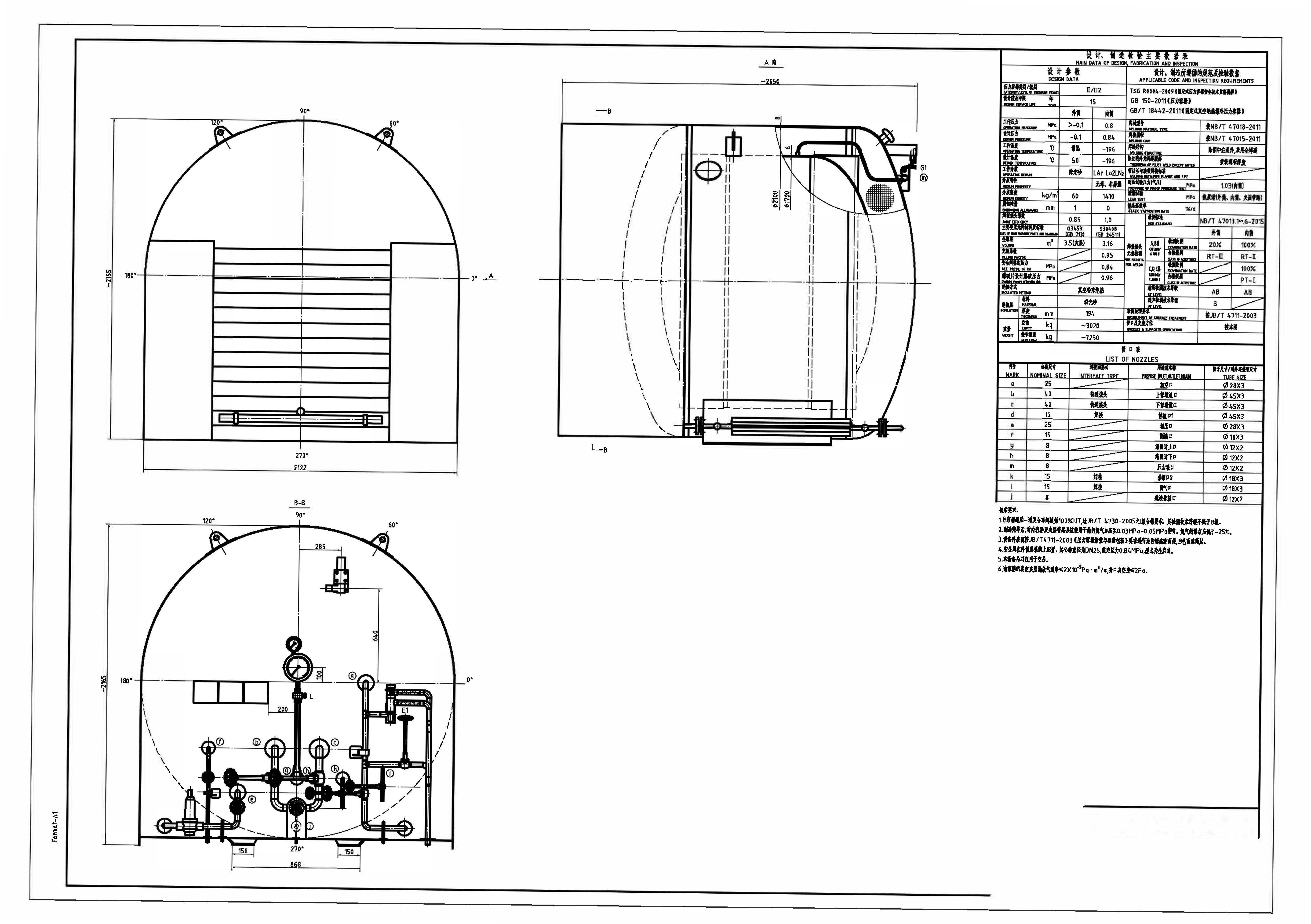
Cryogenic LAr Transport Tank for Light Weight Truck
Model: CF-3000/8
(1).Main technical parameter:
Available volume: 3m3
Geometric volume: 3.15m3
Max working pressure: 8bar
Design pressure: 8.4bar
Insulation method: Vacuum powder
Design temperature: -40℃
Medium: LO2
Main body material S30408/Q245R
Dimension: ~2650X2122X2165mm
Empty weight: ~3020Kg
(2).Scope of supply
|
NO. |
Description |
Code |
Model |
Quantity |
|
1 |
Pressure Building-up Valve |
328DJ25 |
PN4.0 DN25 |
1 |
|
2 |
Upper Liquid Inlet Valve |
328DL40 |
PN4.0 DN40 |
1 |
|
3 |
Lower Liquid Inlet Valve |
328DL40 |
PN4.0 DN40 |
1 |
|
4 |
Liquid Discharge Valve |
328DJ25 |
PN4.0 DN25 |
1 |
|
5 |
Pressure Building-up Adjustable Valve |
252DE40C |
PN2.5 DN40 |
1 |
|
6 |
Three-way Valve |
251DT25A |
PN2.5 DN25 |
1 |
|
7 |
Gas Passing Valve |
328DJ25 |
PN4.0 DN25 |
1 |
|
8 |
Air-Return Valve |
328DJ15 |
PN4.0 DN15 |
1 |
|
9 |
Vent Valve |
328DJ25 |
PN4.0 DN25 |
1 |
|
10 |
Residual Discharge Valve |
251DA8 |
PN4.0 DN8 |
1 |
|
11 |
Safety Valve of Inner Valve |
7K25G |
PN1.6 DN25 |
2 |
|
12 |
Outer Vessel Safety Valve |
H019 |
|
1 |
|
13 |
Piping Safety Valve |
350PSI |
PN4.0 DN8 |
1 |
|
14 |
Fullness Indication Valve |
328DJ15 |
PN4.0 DN15 |
1 |
|
15 |
Control Valve of Liquid Valve |
|
DN4 PN4.0 |
1 |
|
16 |
Vacuum Valve |
ZK-30WA |
|
1 |
|
17 |
Pressure Indication of Inner Vessel |
YO-100 Manometer |
0~1.6MPa |
2 |
|
18 |
Liquid Level Indication |
Differential Pressure Type |
0~2500mm |
1 |
(5)5 meters of tube and tube box each 2
(6)Operating box includes valves and instrument、liquid level gauge etc.
( 7 ) Technical documents 1 set

For more than 10 years, the “People, Product, Planet, Profit” (PPPP) principle has been practiced in Chuankong General Equipment, which means we adhere to human oriented, focus on increasing value on the economic, environmental and social levels at the same time. “4 Ps” has to be taken account of when any decision is made to avoid any negative impact on any of “P”.
For more than 10 years, the “People, Product, Planet, Profit” (PPPP) principle has been practiced in Chuankong General Equipment, which means we adhere to human oriented, focus on increasing value on the economic, environmental and social levels at the same time. “4 Ps” has to be taken account of when any decision is made to avoid any negative impact on any of “P”.
Among the Four Ps, people is crucial as they are the ones who take care of the rest of 3 Ps. We help our employees to build up their profession skills, whilst favorable reward is obtained to keep decent life level. 40% of our employees have served for the company for more than 10 years, as participants and witness of China’s fast growth in gas industry. Regular training and team-building is arranged to keep our team as an energetic and productive one.

We contribute to the development of gas industry for creating a more convenient and better life for the human beings. Let the invisible air turn into visible brilliance.